Двухкомнатная квартира в новостройке 59,60 м2 по ул. Ярославская 115 за 9467640 руб.

Адрес
Адрес Ярославская, 115
Описание
Цена 9 467 640 р. (158 853 р./м2)
Подать заявку на ипотеку
Количество комнат Двухкомнатная
Этаж 10
Этажность дома 12
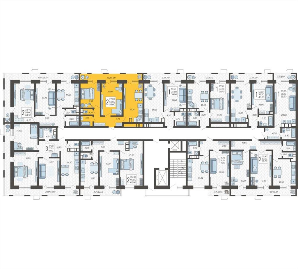
Общая S, м2 59,60
Жилая S, м2 27,20
S кухни, м2 17,20
Продается 2-комнатная квартира в новостройке ЖК «Небо» по адресу : город Краснодар, Ярославская улица, Литер Литер 5. Общая площадь квартиры - 59.6 кв. м., этаж 10 из 12. Без отделки, но с возможностью заказать отделку. Преимущества квартиры: большая кухня, большая лоджия, раздельный санузел Срок сдачи - квартал года. Жилой комплекс «Небо» расположен в районе улицы Ярославская в непосредственной близости от одной из основных магистралей города Краснодар – улицы Дзержинского. Удобная транспортная доступность обеспечена наличием удобного выезда на основные магистрали города – ул. Дзержинского и Ростовское шоссе. В 300 местах от дома расположена остановка общественного транспорта. Для комфортного заезда и выезда из жилого комплекса проектом предусмотрено 2 въезда и выезда. Но несмотря на транспортную доступность, вблизи самого ЖК низкий автомобильный трафик, который обеспечивает тишину и приватность окружения, а также более высокую безопасность для пешеходов. На территории ЖК оборудована 9-этажная автостоянка открытого типа. Традиционно большое внимание уделено благоустройству и озеленению придомовой территории, более 80% территории отдано жителям ЖК «Небо». Номер квартиры 93. Подъезд №1. id: 34999
Квартира в новостройке в Краснодаре
Дата 16.12.2025 2:26:45
Объявление № 23803738
Дата подачи:
16 декабря 2025 г. 2:26
Дата обновления:
16 декабря 2025 г. 2:26
Просмотров 6 Хотите продать быстрее?

Продавец
Агентство недвижимости:
Андреева Ирина Сергеевна
email: 89225397055avega@gmail.co m
Показать номер телефона
Пожаловаться
Комментарии:
Добавить